您好,欢迎进入某某某某电动伸缩门有限公司官网!
金年会- 金年会体育- 金年会官网- 金年会APP

联系我们

邮箱:youweb@admin.com
电话:020-88888888
地址:广东省广州市番禺经济开发区 在线咨询

金年会- 金年会体育- 官网APP大华公园柏翠 (营销中心) 首页网站 销售中心 (售楼处) 欢迎您 电话地址价格户型小区环境楼盘详情交房时间周边配套售楼处电话

发布日期:2025-10-06 10:01 浏览次数:

  金年会,金年会体育,金年会体育app,金年会体育官方网站,金年会注册,金年会最新入口,金年会APP,同频享受静安的商业、医疗、文化等资源;品质方面能够比肩千万级奢宅的楼盘,「大华·公园柏翠」6批次加推164套房源,均价65327元/㎡,建面约101-142㎡3-4房,火爆认购!

  而如今整条北中环线上的房价相当昂贵,整体均价都在约11万+。但这些置业地距离大华公园柏翠不过是一脚油门的事情。

  大华公园柏翠与大宁之间的关系,与宝山新江湾城与杨浦新江湾之间的关系很相似☑️☑️大华公园柏翠售楼处电话:☑️☑️

  但一旦步入二手,这两者之间的房价差距迅速拉近,因为在配套、交通、产业相近的情况下,产品力才是决定一切的根本。

  而大华公园柏翠的产品力,有着不输任何对手的底气!一旦步入二手,这就是整个北中环的王者,拥有极强的未来潜力。

  在上海建设“科创中心”的大目标下,上海市大数据中心已带头落址市北高新。这里将会是上海数据资源最丰富、数据类企业最集中、数据应用场景最广泛的区域。

  另外一方面,宝山其实从去年南北转型开始,就展现出了完全不同以往的发展势头来。

  同时,项目又是整个北中环距离静安、大宁,以及上海主动脉南北高架更近的项目。

  而大华公园柏翠遥遥领先的产品力,未来将吸引这些改善置业客户的不断追逐,直至将其顶上北境之王的价格和地位。

  在叠加项目距离静安直线米的地段,这几乎就是一个位于城市中央、生长在森林里的低密大居。

  大华公园城市一二三期均已交付入住,整个大社区的居住环境、氛围已经非常浓郁。大华公园柏翠这个王冠之上的作品一旦交付,即刻就能享受生活。

  主入口利用108片伯爵灰大理石打造12座景墙单元,辅以香槟色不锈钢修饰。

  用料上,庭院两侧设计师选用大理石与镂空铝板虚实结合,利用2层柏翠造型铝线条错拼而成,更显精致;

  整座大堂外墙采用伯爵灰大理石满铺高墙,电动门镶嵌宝格绿奢石,实现无感通行;

  保加利亚的维纳多石材,整块大理石圆弧拉槽,这是顶级豪宅才有的用料和细节。

  首先,大华公园柏翠利用12级叠水、2座树池、9步水上汀步,运用六重造景的手法打造近500平的中央水景!

  在水系池底通铺1300多片的PRADA绿石(仿石砖)、精选斜飘乌桕、造型紫薇等名贵树种...

  现场不仅有巨型圣诞树,大宁久光同款小食屋,还飘下了2024年上海的“第一场雪”。现场的圣诞氛围满满,人气火热。

  ☑️☑️大华公园柏翠售楼处电线年静安的新房供应主要集中在西藏北路和江宁路板块,均价都是12万/㎡起步。大宁已经许久没有新房供应,但是中外环的静安府、仁恒静安世纪、融创静安映等挂牌价都来到11-13万/㎡。为什么说「大华·公园柏翠」的地理位置绝佳?

  ,直接影响上班通勤便捷性,即使你将来换工作,只要还占位外环内,不管单位在哪里,都能从容应对。

  点击输入图片描述(最多30字)要知道,如今置业肉眼可见的边缘化,主力供应已到外环外5-10公里,如今却还能碰到大华公园柏翠

  地理位置决定了享受到的资源浓度,大宁的繁华咫尺可得。☑️☑️大华公园柏翠售楼处电话:☑️☑️

  约56万平大宁音乐广场、约25万平大宁国际商业广场、约30万平大宁久光百货,静安大融城等商场一路连缀。

  这个出行便捷度,在同能级的板块中,几乎是属于一梯队。☑️☑️大华公园柏翠售楼处电话:☑️☑️

  举个例子:整个浦东外环外,唐镇无疑是王者级的。约10万+的二手房房价、约7万+的新房价格,板块价值可见一斑。☑️☑️大华公园柏翠售楼处电话:☑️☑️

  于是,唐镇就成为了张江精英们外溢的首站。而围绕着这些精英,唐镇落地了大量高能级的教育、商业、生态等资源。这样的良性循环,让这个板块的价值水涨船高,甚至突破环线价格限制。

  同样道理,大华公园柏翠距离静安直线号线站即大宁核心商圈,是整个上海距离静安最近的新房。☑️☑️大华公园柏翠售楼处电话:☑️☑️

  对于工作在大宁、苏河湾、静安寺、南京西路、人民广场、虹口等区域的购房者来说,大华公园柏翠就是地段更好的新房。

  并且相比静安、大宁的约1500万级置业门槛,大华公园柏翠的价格几乎是差了一半多,这样的性价比谁能抵挡?

  与大华公园柏翠同纬度的板块,新房均价起码约8.58万/㎡起,单价约10万+的区域比比皆是。☑️☑️大华公园柏翠售楼处电话:☑️☑️

  · 周边约900M范围:共康商圈、社区邻里中心商业广场、场北集贸市场、北斗星广场

  教育方面,项目周边教育资源丰富,包括陈伯吹实验幼儿园(上海市示范幼儿园)、陈伯吹实验小学,华师大宝山实验学校等学校。☑️☑️大华公园柏翠售楼处电话:☑️☑️

  免责声明:以上教育资源整理仅代表楼盘与学校的距离,该房屋所在项目暂未划分学区,开发商不对项目交房后所属学区、学校做任何承诺。教育资源分配或学校/学区划分以及学校的具体招生规则等请以政府相关主管部门、教育机构公开的最新信息为准。

  生态方面,项目坐拥五大公园:☑️☑️大华公园柏翠售楼处电线万方伟岸绿境环抱,包括千亩绿境(约60万方绿化在侧),约3万方庙行公园、约4.2万方共和公园,约2.7万方三泉公园、约9.3万方彭浦四季公园等。

  项目整个社区由4栋16层、10栋17层小高层组成,是纯粹的低密小高层住宅

  一方面,小高层在近期的上海市场中非常稀缺,尤其是在中环线上的位置上,小高层住宅凤毛麟角。☑️☑️大华公园柏翠售楼处电话:☑️☑️

  但另外一方面,小高层天然的高得房率、私密性和居住舒适度也保证了这个产品的受欢迎程度

  大部分的房源均是无连廊的设计,将带来更高的采光通透度、更好的通风以及更高的得房率。

  ☑️☑️大华公园柏翠售楼处电话:☑️☑️再加上项目飞机户型的设计,室内几乎0空间浪费,即使是小户型也有超高的尺度感。

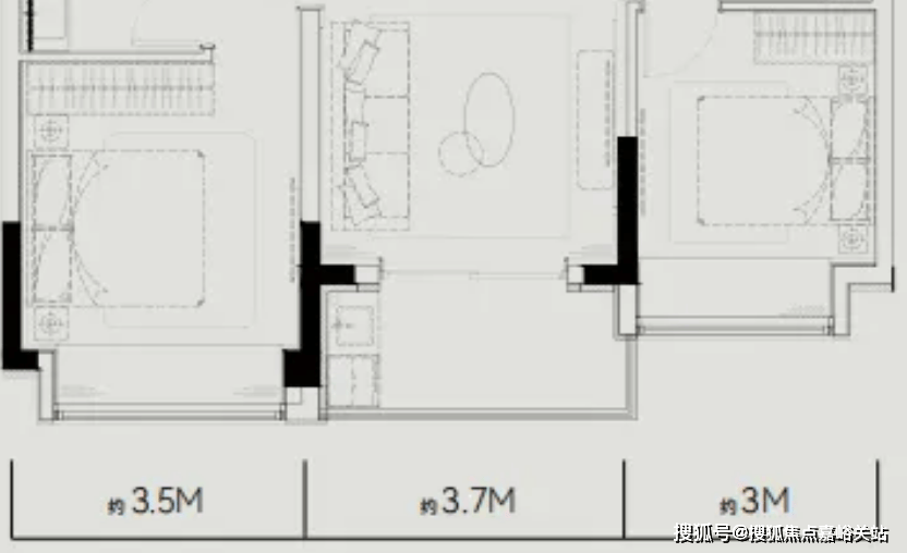
  点击输入图片描述(最多30字)建面约101㎡3房2卫户型,非常标准的飞机户型。

  别小看这约1.3米,整体的尺度感完全不同。☑️☑️大华公园柏翠售楼处电话:☑️☑️

  的设计。撑起气场的同时,也能为家庭带来更多的生活想象。☑️☑️大华公园柏翠售楼处电话:☑️☑️

  大横厅也可以灵活运用在各种生活场景,例如作为妈妈的瑜伽室、孩子的游乐天地等,都是很好的选择。

  点击输入图片描述(最多30字)为更好满足居民刚性住房需求和多样化改善性住房需求,促进房地产市场平稳健康发展,8月25日,上海市住房城乡建设管理委、市房屋管理局、市财政局、市税务局、人民银行上海市分行、市公积金管理中心等六部门联合印发《关于优化调整本市房地产政策措施的通知》(以下简称《通知》),包括调减住房限购、优化住房公积金、优化个人住房信贷以及完善个人住房房产税等政策。《通知》自2025年8月26日起施行。

  为更好满足居民改善性需求,促进宜居安居、职住平衡,《通知》明确进一步调减住房限购政策。一是符合条件居民家庭在外环外购房不限套数。对符合本市住房购买条件的居民家庭,包括本市户籍居民家庭、在本市连续缴纳社会保险或个人所得税满1年及以上的非本市户籍居民家庭,在外环外购买住房不限套数,包括新建商品住房和二手住房。二是成年单身人士按照居民家庭执行住房限购政策。

  按照上述规定,沪籍居民家庭和沪籍成年单身人士,在外环外购买住房不限套数;在外环内限购2套住房。非沪籍居民家庭和非沪籍成年单身人士,自购房之日前在本市连续缴纳社会保险或个人所得税满1年及以上的,在外环外购买住房不限套数;自购房之日前在本市连续缴纳社会保险或个人所得税满3年及以上的,在外环内限购1套住房。

  为加大公积金支持住房消费力度,《通知》规定优化住房公积金政策。一是提高个人住房公积金贷款额度。对缴存人购买二星级及以上新建绿色建筑住房的,住房公积金(含补充公积金)最高贷款额度上浮15%。首套最高贷款额度从160万元提高至184万元,多子女家庭首套上浮比例可叠加计算,从192万元提高至216万元;二套最高贷款额度从130万元提高至149.5万元。二是支持提取住房公积金支付购房首付款。对缴存人购买我市新建预售商品住房的,可以按规定申请提取本人及配偶的住房公积金支付购房首付款。三是支持住房公积金“又提又贷”。对缴存人提取住房公积金支付购房首付款的,不影响其住房公积金贷款额度计算。

  为减轻居民购房利息负担,《通知》明确优化个人住房信贷政策。银行业金融机构根据上海市市场利率定价自律机制要求和本机构经营状况、客户风险状况等因素,在利率定价机制安排方面不再区分首套住房和二套住房,合理确定每笔商业性个人住房贷款的具体利率水平。

  为衔接优化住房限购政策,《通知》规定对符合条件的非本市户籍居民家庭购买的第一套住房暂免征收房产税;购买的第二套及以上住房在合并计算家庭全部住房面积后,给予人均60平方米的免税面积扣除。由于个人住房房产税按年征收,因此2025年1月1日起符合条件的购房者可享受本条政策。

  看房前请提前拨打售楼处热线进行电话预约,进行预约的客户可享受开放商提供的内部优惠,一对一的;vip服务让您更舒心更方便。

  现在预约看房,可享「专属服务」:在线一对一销售服务,还能优先锁定小区中心位置房源。拨打售楼处专线 ,可以安排专车上门接送,带您实地看实体样板间,还能帮您算专属购房优惠,避免买贵、买错!,让您花最少的钱,选到最满意的房!

  平台声明:该文观点仅代表作者本人,搜狐号系信息发布平台,搜狐仅提供信息存储空间服务。

联系方式

全国服务热线

020-88888888

手 机:13899999999

地 址:广东省广州市番禺经济开发区

扫一扫,加微信

Copyright © 2018-2025 金年会- 金年会体育- 金年会官网- 金年会APP电动伸缩门有限公司 版权所有 非商用版本 备案号: